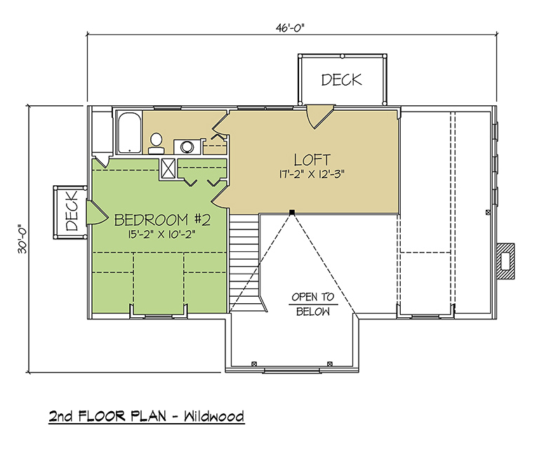
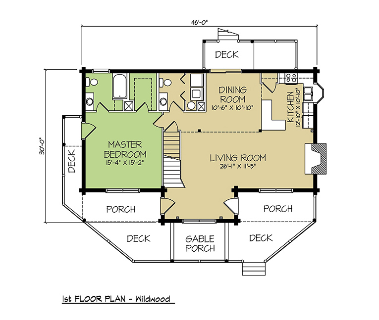
Wildwood
1,744 sq.ft. (162 SQM)
About The Wildwood
After a day on the slopes or cross-country skiing down country lanes, the Wildwood, with its distinctively Scandinavian design flavor, is the perfect retreat for coffee and relaxation while witnessing a splendid winter sunset.
Wildwood Specifications
Total living: 1,744 sq.ft.
Main floor: 1,194 sq.ft.
Upper floor: 550 sq.ft.


