Whitewater
2,428 sq.ft. (225 SQM)
About The Whitewater
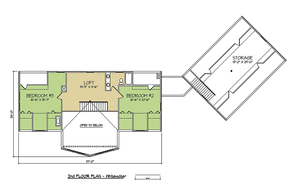
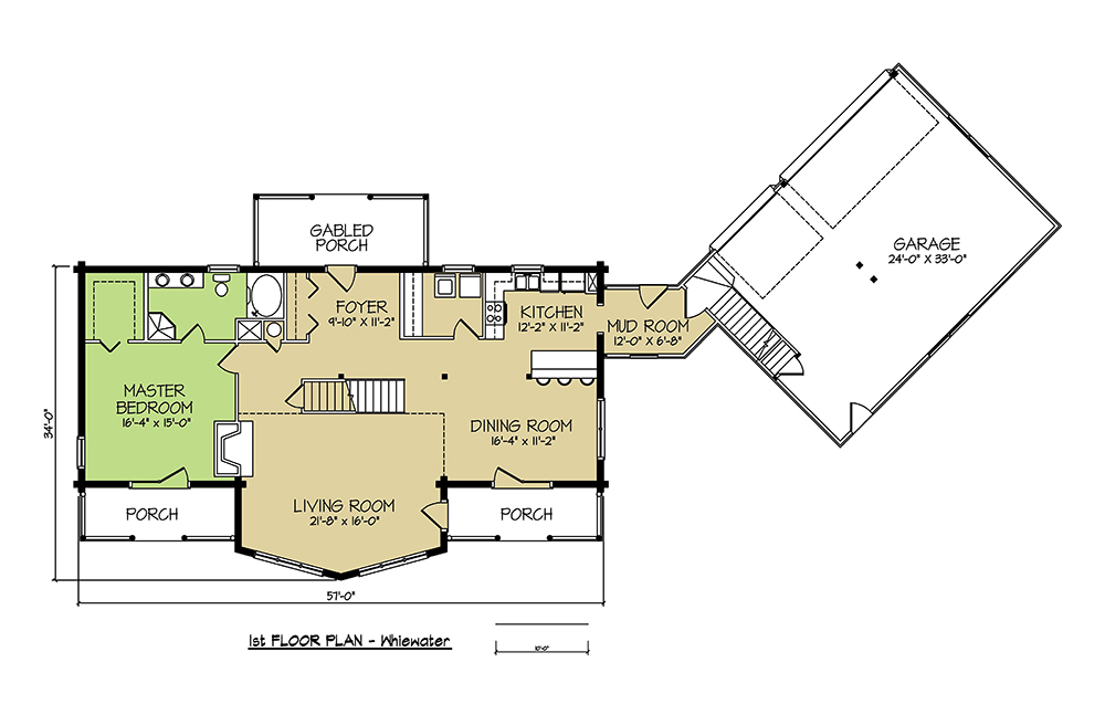
This elegant log home has a glass covered prow-front, two gable dormers as well as two spacious shed porches at the front and an inviting gabled porch at the rear. The foyer views a living room fireplace and soaring vaulted ceiling. The master suite has private access to a covered porch and is secluded from the bedrooms above. On the opposite side of this lovely home is a kitchen and dining room combination with center island seating and sliding glass door to a covered porch. Stairs near the dining room lead to an upper level loft area and two spacious bedrooms with large dormer windows and massive closet space. The attached three car garage has stairs to the optional bonus room above.
Whitewater Specifications
Total living: 2,428 sq.ft.
Main floor: 1,649 sq.ft.
Upper floor: 799 sq.ft.


