Sierra
3,636 sq.ft. (338 SQM)
About The Sierra
Dramatic beam-to-floor windows in this traditional mountain chalet home make the Sierra a breathtaking choice to build overlooking a peaceful wooded valley or quiet lakeside view.
Sierra Specifications
Total living: 3,636 sq.ft.
Main floor: 2,348 sq.ft.
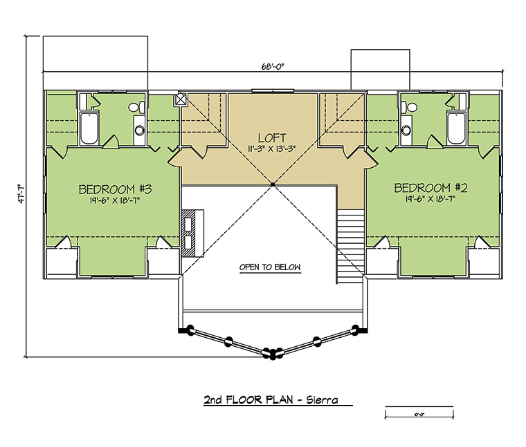
Upper floor: 1,288 sq.ft.


