Sequoia
1,439 sq.ft. (135 SQM)
About The Sequoia
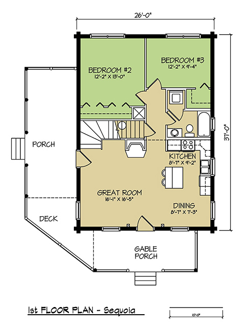
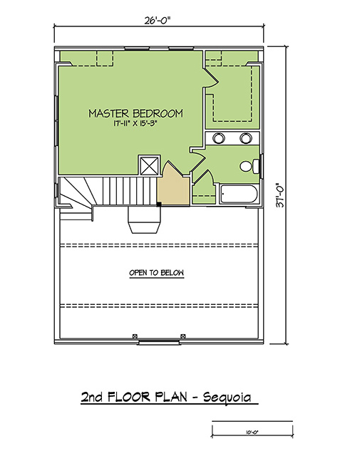
This cozy, small sized log cabin is planned for relaxation. The Sequoia offers a welcoming front Gabled porch, and a large Screened porch. The Living room has access to the Side porch and has an optional Corner fireplace. The adjoining Kitchen & Dining area is planned to allow placement of a large dining table for entertaining friends and family. This spacious main level is completed with two roomy bedrooms, a laundry closet and full bathroom with linen closet. The upper level has a large master suite with two Walk-in closets as well as a private bathroom with double vanities.

Premium Small Log Home Plan with Smart Layout

Cozy Compact Log Cabin Design for Modern Living
⚙ Sequoia Specifications
✔️ Total living: 1,439 sq.ft.
✔️ Main floor: 962 sq.ft.
✔️ Upper floor: 477 sq.ft.


