Coral Ridge
2,627 sq.ft. (244 SQM)
About The Coral Ridge
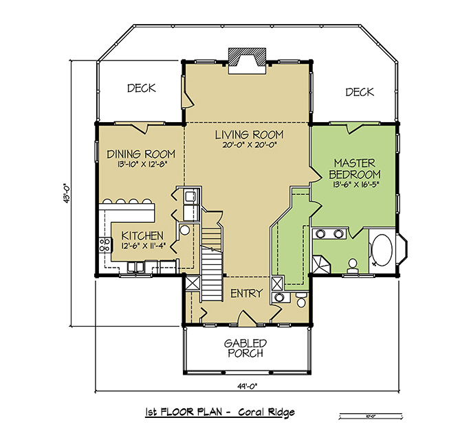
Warmth and a spacious interior are present in this log home plan enhanced by an open gabled porch and round top window. The foyer has a half bath and staircase to the upper level loft with fireplace and two bedrooms, private bathrooms and laundry chute. On the main level you’ll find a great room with two-sided fireplace for cozy entertaining. The nearby kitchen has a large eat-at bar and a handy dumbwaiter for serving the upper level guests. An adjoining dining area leads to a screened porch as well as the massive rear deck. The master suite rests on the opposite end and has a lovely private bathroom and private deck entry.
Coral Ridge Specifications
Total living: 2,627 sq.ft.
Main floor: 1,603 sq.ft.
Upper floor: 1,024 sq.ft.


