Cambridge
2,466 sq.ft. (229 SQM)
About The Cambridge
Sit back and enjoy a blazing fire in the Cambridge’s rustic fireplace as well as stunning views from the myriad windows and French doors of this uncommon mountain home.
Cambridge Specifications
Total living: 2,466 sq.ft.
Main floor: 1,584 sq.ft.
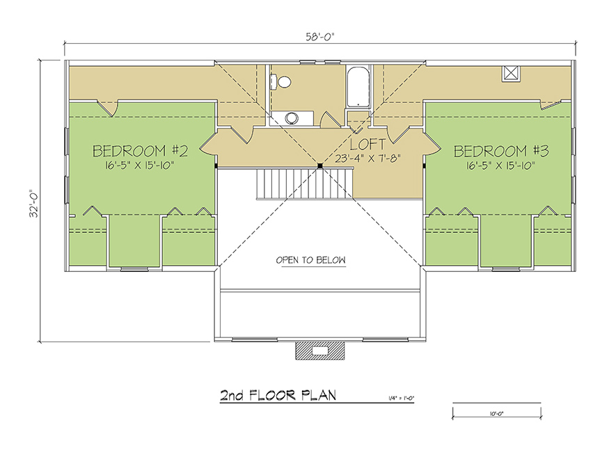
Upper floor: 882 sq.ft.


