Bay Ridge
1,919 sq.ft. (178 SQM)
About The Bay Ridge
Nestle it beside a murmuring stream, tuck it in the shadow of a mountain range or build it in the suburbs twenty minutes from work, the Bay Ridge combines the best of a rustic log cabin design with the spaciousness of a contemporary floor plan.
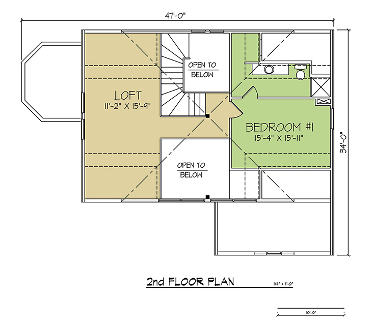
Bay Ridge Specifications
Total living: 1,919 sq.ft.
Main floor: 1,231 sq.ft.
Upper floor: 688 sq.ft.


