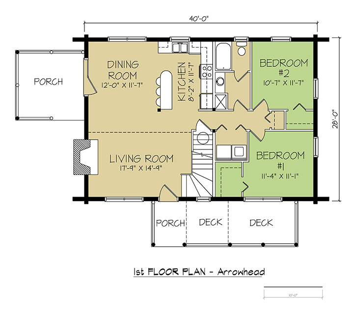
Arrowhead
1,965 sq.ft. (183 SQM)
About The Arrowhead
A late evening snow fall, steam rising from freshly made hot chocolate, the glow of a crackling fire; the Arrowhead has been designed with expansive windows and a French door to the spacious side porch so that friends and family can truly enjoy all the splendor the seasons have to offer.
Arrowhead Specifications
Total living: 1,965 sq.ft.
Main floor: 1,120 sq.ft.
Upper floor: 845 sq.ft.


