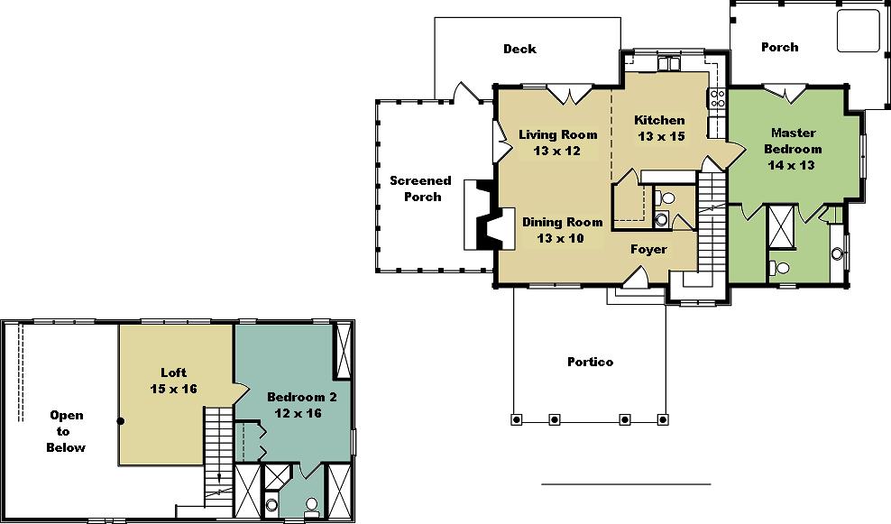
THE CHESTNUT LODGE
Total Living 1,717 SQ.FT.
January 1, 2015
The Chestnut Lodge is one our smaller log cabins. Complete perfection. There is no other way to describe this beautiful cabin. With a spacious, open floor-plan, this house beckons you to bring the outside in with decks and porches wrapping around at almost every point. It won’t matter if you are entertaining or spending quiet time alone communing with nature, this home will be your peaceful heaven from the hectic rush of the rest of the word.


