June 1, 2017
Jim Barna is excited to announce the reopening of one of the company’s most successful sales models. Overwhelming interest in log homes has led to the need to provide customers with more opportunities to tour a Jim Barna log home model closer to Knoxville.
The office is conveniently located just a quarter of a mile from I-75’s Clinton exit (122). It is right behind the
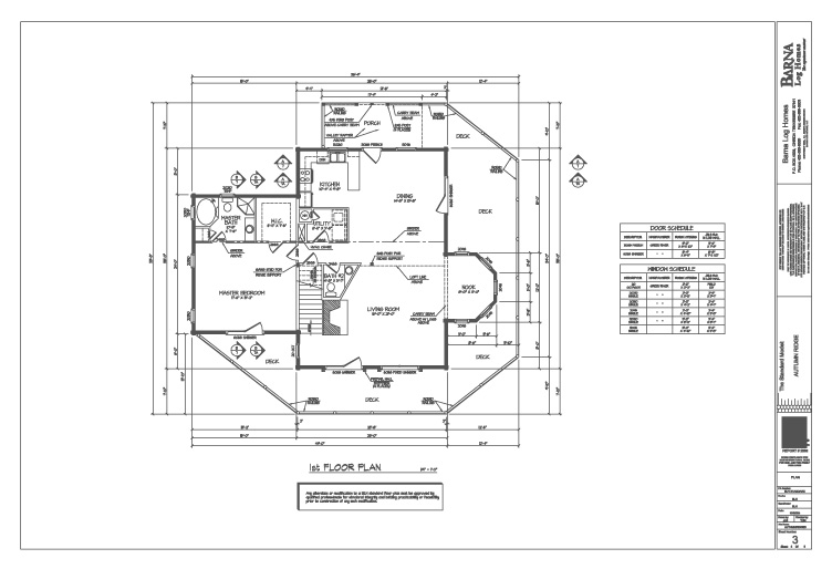
Golden Girls Restaurant and the Tourist Information Center. The sales model is one of Jim Barna’s standard models called Autumn Ridge.
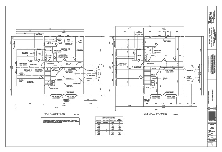
While the first floor features a large living room, a half bath for guests, a master bedroom with master bath as well as kitchen, dining room and breakfast nook, the second floor has two additional bedrooms, a bath, walk-in closets for both bedrooms as well as a spacious cathedral ceiling area over the living room. The home features a glassed prow-front which can serve as both a mountain/lake-view vacation home or a spacious permanent residence for a large family.
The sales model will be completely renovated before it reopens its doors to prospective log home customers in August / September 2017.
We know that the easier we make it for people to design and build their log homes, the more people will be able to do so. With our full array of products and services, including the alliances we have made with builders, financial institutes and architects, it as easy to find everything you need to move forward with your dream home by utilizing the products and services of Jim Barna. Whether you choose on of our many standard models or want our design staff to start from your own sketch, let us help you live on vacation in your log home.
It is our sincere hope that you choose Jim Barna Log & Timber Homes as the provider of your log home. Our staff is eager to serve you and will continue to work hard to earn your business !
(Contact us to receive update and more information about this particular floor-plan:
Phone: 423-215-1390
Email: jimbarnahomes@gmail.com
![]()

